Image Image Image Image

Rooftop Apartment

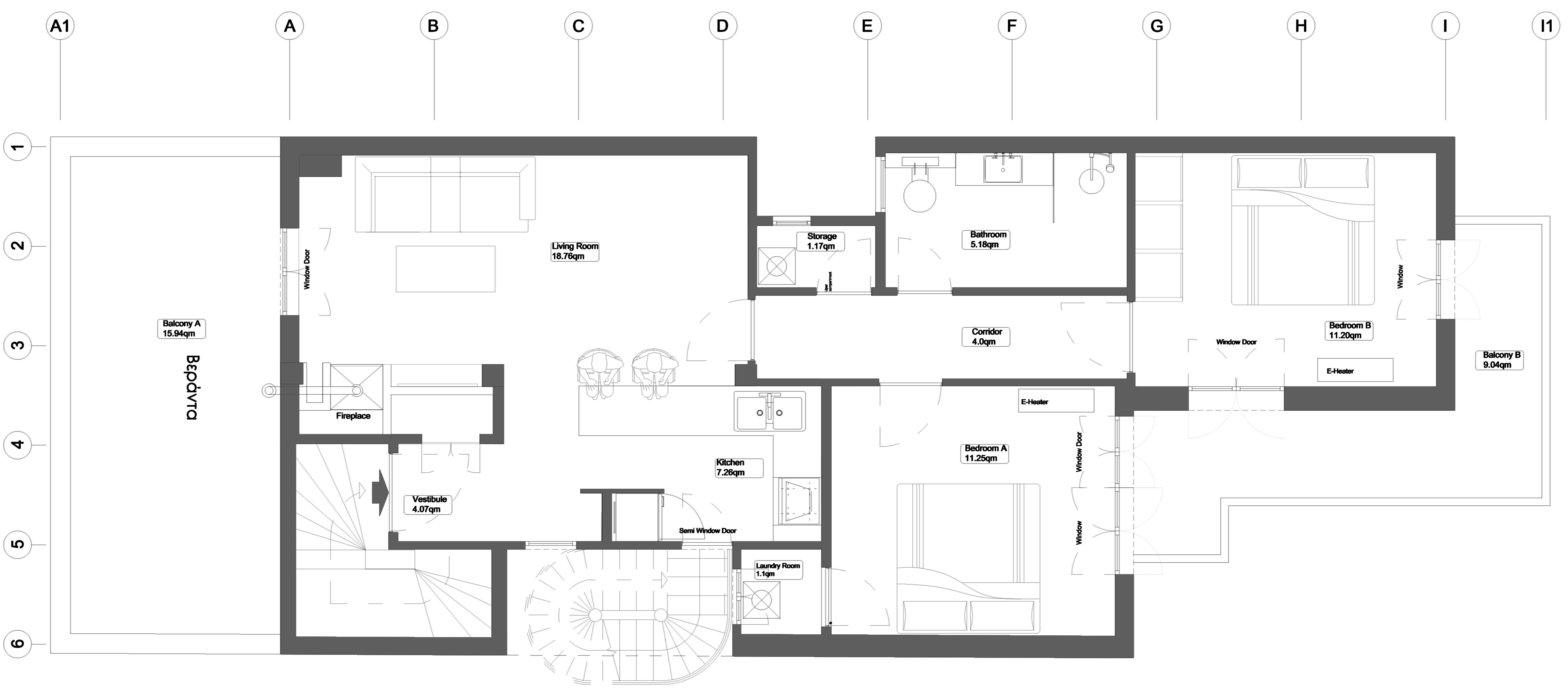
The Apartment is located on the top floor of a Apartment building in Athens/Greece. The task was to give the Apartement a unique look and overall technical upgrade, while considering the project constrains (e.g. Family with one child and individual requirements).The fit-out works encompassed Master Bedroom and Kids Room, Living Room, Kitchen, Bathroom, the two Balconies HVAC, electrical wiring & Sockets, Flooring/Windows/Doors.

  • Location:Athens

  • Date:2019 - on hold

  • Size:76sqm

  • Client:Private

  • Scope of Work: Interior Design, Schematic Design and Construction drawings, Quantification and Contractor negotiation