Image Image Image Image Image Image

CGN Headquarters Building

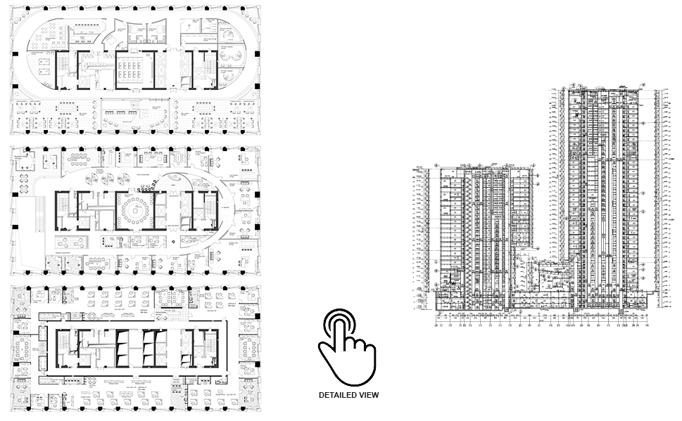
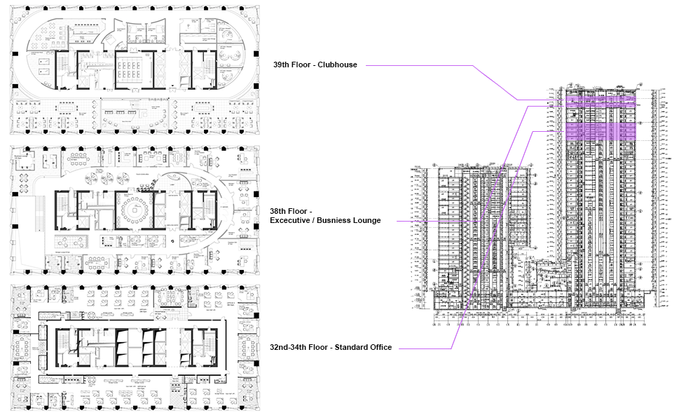
RFP: CGN Headquarters Building. International open conceptual design competition (interior fit out). The required submision was the preliminary interior design for seven Floors and nine different Zones.

Approach: The design of the interior curtain Wall is derived from a sediment stone rock. It reflects the “vertical city”, different Layers and utilization of the Building that rises from a strong base. Several woven like bands in a alternating rythm create a strong statement. The lobby spans over three storeys. The spaciousnes was used in a way that reflects rationalism. White as dominating color emphasizes the detailed forms and interior elements. May one find him self reminded on a laboratory before the depict minimalism and detailing of the interior unfolds it’s virtue. To create a spine between interior and exterior, the irregular forms of the exterior facade where taken as inspiration for the window design of the mezzanine space.

The design of the standard offices is built around two themes.

-A- People oriented design: The layout offers workstations near the window, so that employees can feel the sunshine, change of the light troughout the day and the surrounding city scenery. This, to support the natural biorythm and fitness. Break out areas for brief discussions and talks, to keep the motivation and information flow.

-B- Sustainability / LEED: Use of renewable materials such as bamboo for the flooring, furnitures and Wall coverings, compressed straw board, low VOC adhesives sealants, paint and Carpets and ceilings that can be recycled. Implementation of building control-/sensor systems to reduce the energy consumption of artificial light and the A/C system.

  • Location:Shenzhen

  • Date:RFP/Pitch 2011

  • Size:77.000sqm

  • Client:GC/China General Nuclear Power Group (CGN)

  • Scope of Work:Design Concept for all Floors, Material Sampling, loose furniture selection and tailor made furniture

    Programming: 1st Floor Main Looby with Visitor and Employee Entrance, Lift Lobby
    2nd Floor Company Showroom
    3rd Floor Multi-purpose Auditorium
    29th Floor Canteen
    31st-34th Floor Standard open Office
    38th Floor Management-Excecutive
    39th Floor Clubhouse