Image Image Image Image

Fine Wines Store

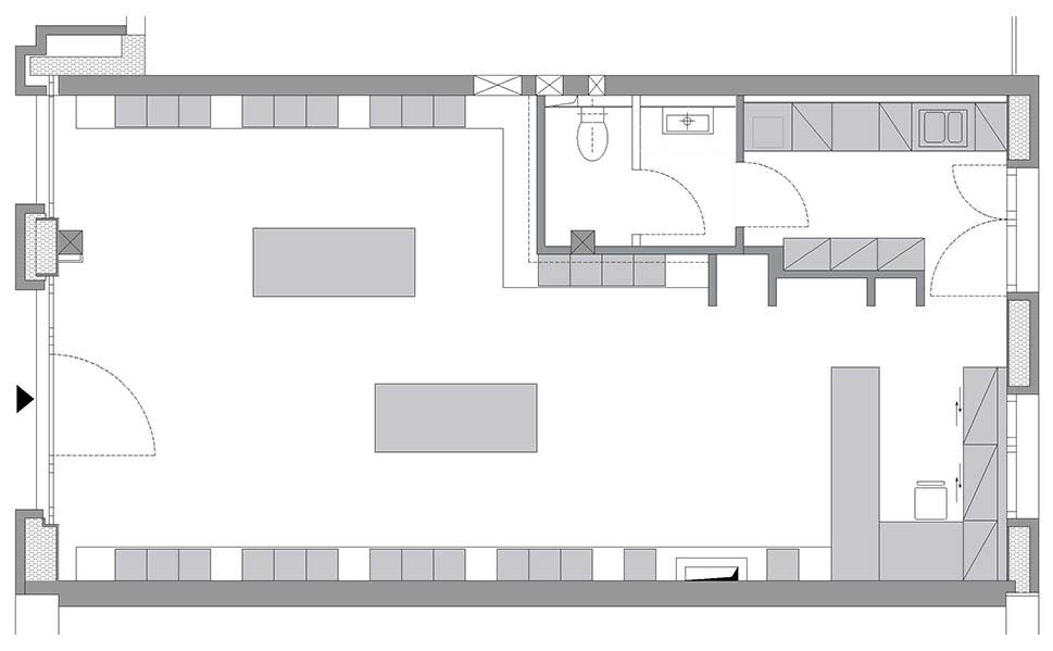
The project was a tenant fit-out of a new wine store and the Design concept is derived from typical characteristics and subjects related to wine. The use of oak (wine barrel) plays a significant role in winemaking and can have a profound effect on the resulting taste of wine. It stands for tradition and is used for the flooring and shelf’s. The wall spotlights between the display shelf’s stand for cresset’s in a wine cellar. And the gray tile wall covering (slate) stands for the ground on which wine grows. Glossy white stands for modernism and reflects the contemporary approach. It is used as contrasting color for display-tables and cashier counter. The entire interior is held minimalistic, with a warm touch. The two display tables are creating a center and can be used during wine tastings and as display/storage. The shelfs are standing on a white podest, aranged in a rythm and clear to overlook along the enclosing walls of the rectangular shaped space. Brushed chrome is used for the lights and skirting board on the podest.

  • Location:Frankfurt a.M.

  • Date:2009

  • Size:70sqm

  • Client:Krömker

  • Scope of Work: Concept Design, Design Development, Specification, Construction and Cost Management