Image Image Image Image

Hualing Group

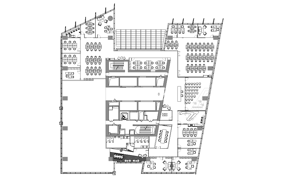
The Client where seeking for a functional update and design face lift of the existing Office- Space on the 22nd/23rd Floor. A focus was put on the 23rd Floor as a represantive Office Floor.

  • Location:Shanghai

  • Date:Pitch 2016
  • Size:1.700sqm

  • Client:Hualing Group

  • Scope of Work: Schematic Design and Costestimation