Image Image Image Image

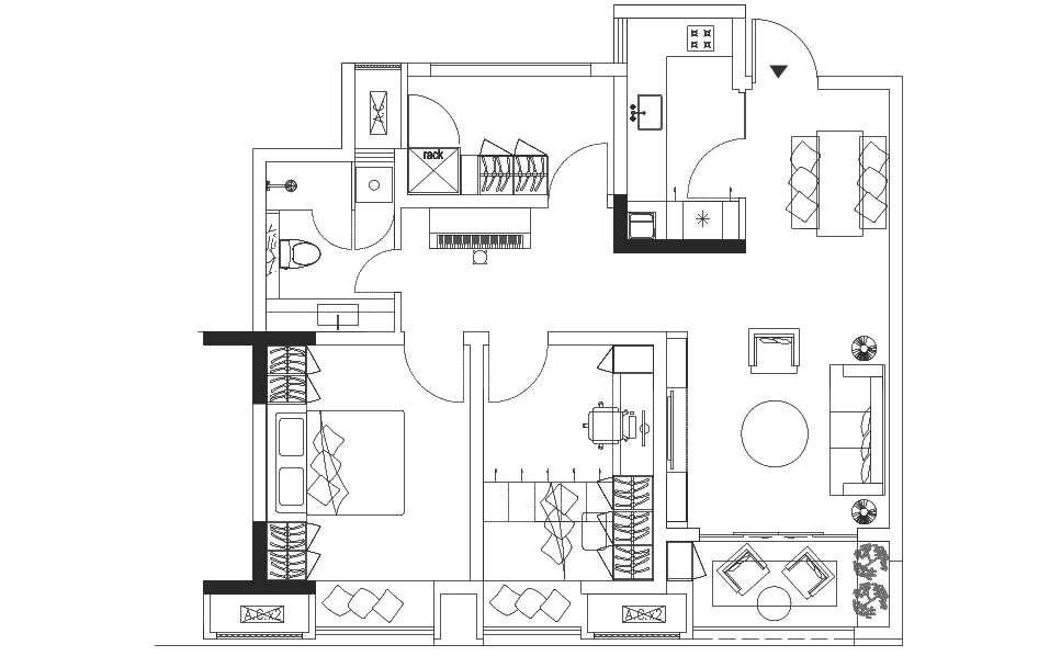
Suzhou Apartment

The Apartment with a total net size of 70sqm is located in Souzhou and was purchased as a shell construction (fit-out by the purchaser/owner). The task was to give the Apartement a unique look, while considering the project constrains (e.g. Family with one child and individual requirements).The fit-out works encompassed Bed and Kids Room, Living Room, Kitchen, Bathroom, HVAC, electrical wiring & Sockets, Flooring.

  • Location:Souzhou/China

  • Date:2017

  • Size:70sqm

  • Client:Private

  • Scope of Work: Schematic Design and Construction drawings,loose furniture selection