Image Image Image

Tesiro

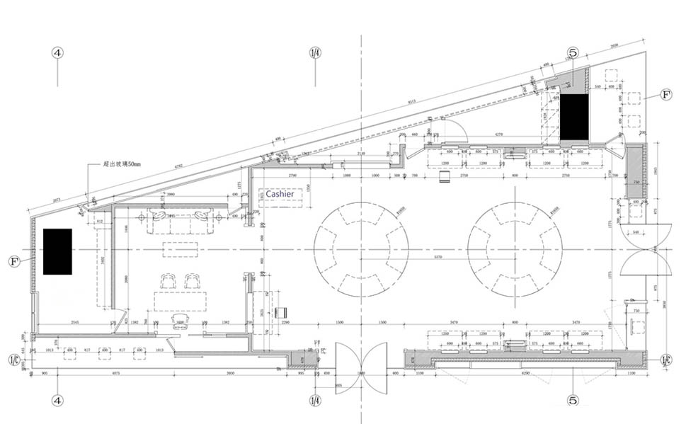
Tesiro, a well known jewelry brand in Belgium and Europe’s largest jewelry retailer in China was seeking a make over of their current retail design. The concept has therefore strong classical European style references with a contemporary connotation. The zoning consists of a main Sales area with free standing displays and a VIP Room with a living room like, intimate character. The accentuating moulded panelings and Display Furnitures are made of dark wallnut. The wall design has clean lines and a rythm that borders the Displays perfectly, while underlining the beauty of the jewelery. The color palette ranges from dark Wallnut, pastel tones & champagne to white. The store design took into account the space efficiency, brand image and modular design requirements set out in the developed retail planning guidelines. By introducing a digital experience concept that seamlessly combines tradition and innovation, the distinctive personality of the brand was authentically emphasized.

  • Location:Tianjing

  • Date:2014

  • Size:130sqm

  • Client:Tesiro / Cogitoimage Intern.

  • Scope of Work: Concept & Design Development, Creation of SI (Space Identity) and the respective Design&Build Manuel